0551-65568226
18055117184(微信同號)
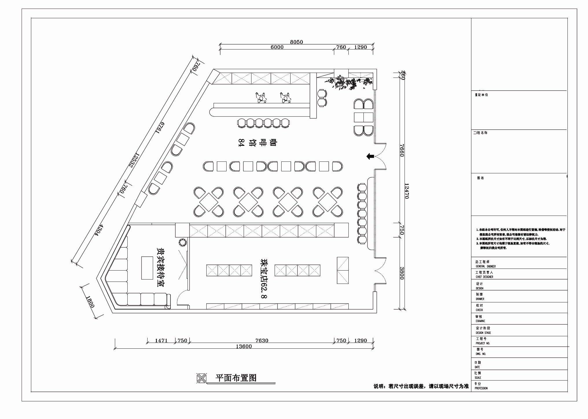
工程名稱:合肥市百貨大樓咖啡廳方案
裝修類型:設計+施工
房屋面積:140平米
效果圖:
平面方案圖:
公司地址:合肥市望江西路萬科名郡生活廣場首座24層 聯(lián)系電話:0551-65568226 18055117184(微信同號)